Nhận tư vấn hồ sơ miễn phí về dự án nhà ở xã hội Trung Văn LH SDT hoặc Zalo: 0971518813

Dự án NOXH Trung Văn, Đường Tố Hữu, Phường Trung Văn, Nam Từ Liêm, Hà Nội.

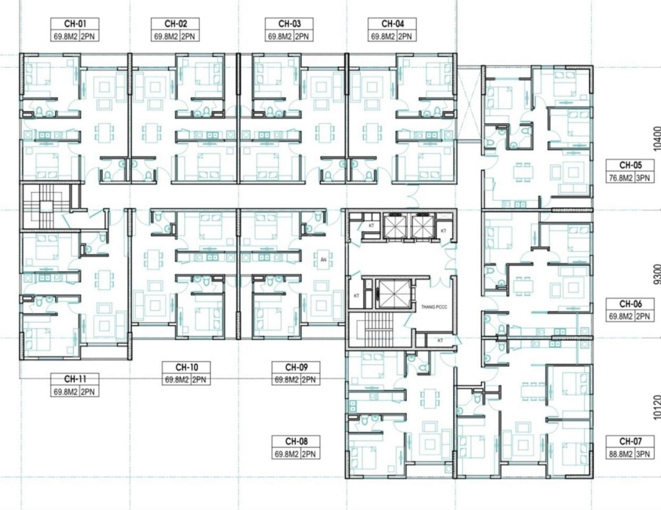
Tổng quan dự án nhà ở xã hội trung văn.
Tên dự án: Nhà ở xã hội Trung Văn - Tố Hữu (NOXH Trung Văn).
Chủ dự án đầu tư: Liên danh chủ đầu tư NHS (Công ty cổ phần đầu tư xây dựng NHS và Công ty cổ phần đầu tư xây dựng số 4).
Vị trí: Tại ô đất HH 02A Đông Nam đường Tố Hữu, phường Trung Văn, quận Nam Từ Liêm, Hà Nội.
Tổng diện tích đất: 2,726,1 m².
Tổng diện tích xây dựng: 34.560 m².
Số tầng: 32 tầng.
Tầng hầm: 02 tầng.
Công ty thiết kế: Công ty kiến trúc đô thị Hà Nội.
Mật độ xây dựng: 46,2 %.
Quy mô dự án: 275 căn hộ chung cư.
68 căn nhà ở xã hội cho thuê.
157 căn nhà ở xã hội để bán.
50 căn nhà để kinh doanh thương mại.
Cơ cấu diện tích căn hộ: 69,8 88,8 m².
Tiện ích dự án: Trung tâm thương mại, Gym, Spa.
Nhà ở xã hội Trung Văn nằm tại vị trí đắc địa trên tuyến đường Tố Hữu (Lê Văn Lương kéo dài) thuộc Quận Nam Từ Liêm, TP Hà Nội.
Hotline: 0971 518 ***
Diện tích 70 m²
Mức giá Thỏa thuận
Số phòng ngủ 2 phòng
Số toilet 2 phòng

Nhận tư vấn hồ sơ miễn phí về dự án nhà ở xã hội Trung Văn LH SDT hoặc Zalo: 0971518813

Dự án NOXH Trung Văn, Đường Tố Hữu, Phường Trung Văn, Nam Từ Liêm, Hà Nội.

Tổng quan dự án nhà ở xã hội trung văn.
Tên dự án: Nhà ở xã hội Trung Văn - Tố Hữu (NOXH Trung Văn).
Chủ dự án đầu tư: Liên danh chủ đầu tư NHS (Công ty cổ phần đầu tư xây dựng NHS và Công ty cổ phần đầu tư xây dựng số 4).
Vị trí: Tại ô đất HH 02A Đông Nam đường Tố Hữu, phường Trung Văn, quận Nam Từ Liêm, Hà Nội.
Tổng diện tích đất: 2,726,1 m².
Tổng diện tích xây dựng: 34.560 m².
Số tầng: 32 tầng.
Tầng hầm: 02 tầng.
Công ty thiết kế: Công ty kiến trúc đô thị Hà Nội.
Mật độ xây dựng: 46,2 %.
Quy mô dự án: 275 căn hộ chung cư.
68 căn nhà ở xã hội cho thuê.
157 căn nhà ở xã hội để bán.
50 căn nhà để kinh doanh thương mại.
Cơ cấu diện tích căn hộ: 69,8 88,8 m².
Tiện ích dự án: Trung tâm thương mại, Gym, Spa.
Nhà ở xã hội Trung Văn nằm tại vị trí đắc địa trên tuyến đường Tố Hữu (Lê Văn Lương kéo dài) thuộc Quận Nam Từ Liêm, TP Hà Nội.
Hotline: 0971 518 ***
Diện tích 70 m²
Mức giá Thỏa thuận
Số phòng ngủ 2 phòng
Số toilet 2 phòng
Bất động sản dành cho bạn

Chủ nhà cần bán gấp căn hộ Mỹ Khánh 4, 118m2, 3PN, 2WC giá 4.25 tỷ LH 0914 266 ***

Chủ nhà cần bán gấp căn hộ Mỹ Khánh 4, 118m2, 3PN, 2WC giá 4.25 tỷ LH 0914 266 ***

Dự án Mỹ Khánh 4, Đường Nguyễn Văn Linh, Phường Tân Phong, Quận 7, Hồ Chí Minh

Bán hàng ngộp căn hộ Topaz 2PN 94m2. Có 1 số nội thất. Chỉ 2.9 tỷ bao trọn thuế phí 5%. Giá tốt

Bán hàng ngộp căn hộ Topaz 2PN 94m2. Có 1 số nội thất. Chỉ 2.9 tỷ bao trọn thuế phí 5%. Giá tốt

Dự án Topaz Twins, Đường Số 1, Phường Thống Nhất, Biên Hòa, Đồng Nai

365 ngày nghỉ dưỡng ngay tại căn hộ cao cấp The Sang Residence view biển Mỹ Khê - sở hữu lâu dài

365 ngày nghỉ dưỡng ngay tại căn hộ cao cấp The Sang Residence view biển Mỹ Khê - sở hữu lâu dài

Dự án The Sang Residence, Đường Phạm Kiệt, Phường Khuê Mỹ, Ngũ Hành Sơn, Đà Nẵng

Gia đình cần bán chung cư Hyundai Hillstate, DT 139m2, gồm 3PN, 2VS, giá rẻ nhất thị trường, 4.5 tỷ

Gia đình cần bán chung cư Hyundai Hillstate, DT 139m2, gồm 3PN, 2VS, giá rẻ nhất thị trường, 4.5 tỷ

Dự án Hyundai Hillstate, Đường Tô Hiệu, Phường Hà Cầu, Hà Đông, Hà Nội

Chung Cư Ehome 5- Trần Trọng Cung Q7- 54m2- 1PN+ 1 phòng đọc. Giá 2.150tỷ. LH: 0901 311 ***

Chung Cư Ehome 5- Trần Trọng Cung Q7- 54m2- 1PN+ 1 phòng đọc. Giá 2.150tỷ. LH: 0901 311 ***

Dự án Ehome 5-The Bridgeview, Đường Trần Trọng Cung, Phường Tân Thuận Đông, Quận 7, Hồ Chí Minh

Cần bán căn 2PN 2WC tại Lavita Thuận An giá hợp đồng 2,21 tỷ, bán giá thanh toán 1,52 tỷ 95% có VAT

Cần bán căn 2PN 2WC tại Lavita Thuận An giá hợp đồng 2,21 tỷ, bán giá thanh toán 1,52 tỷ 95% có VAT

Dự án Lavita Thuận An, Đường Nguyễn Thị Minh Khai, Phường Thuận Giao, Thuận An, Bình Dương

Bán CH Sài Gòn South 75m2 2PN 2WC tầng cao view sông 3.5 tỷ nội thất cao cấp. LH 0935 926 ***

Bán CH Sài Gòn South 75m2 2PN 2WC tầng cao view sông 3.5 tỷ nội thất cao cấp. LH 0935 926 ***

Dự án Saigon South Residences, Đường Nguyễn Hữu Thọ, Xã Phước Kiển, Nhà Bè, Hồ Chí Minh

Cần bán gấp căn hộ 19 tòa S3 thiết kế vuông đẹp nhất tòa S3 view hồ

Cần bán gấp căn hộ 19 tòa S3 thiết kế vuông đẹp nhất tòa S3 view hồ

Dự án Vinhomes Skylake, Đường Phạm Hùng, Phường Mỹ Đình 1, Nam Từ Liêm, Hà Nội.

Bán lỗ căn góc 2PN + 1(107m2) view thoáng đẹp - BC Đông Nam - nội thất đẹp giá 8 tỷ tại Hà Đô Q10

Bán lỗ căn góc 2PN + 1(107m2) view thoáng đẹp - BC Đông Nam - nội thất đẹp giá 8 tỷ tại Hà Đô Q10

HaDo Centrosa Garden, 200, Đường 3/2, Phường 12, Quận 10, Hồ Chí Minh

Độc quyền bán căn góc 2PN WH-10 giá 9,2tỷ (98m2) view cầu Thủ Thiêm, quận 1, Bitexco. LH 0938 022 ***

Độc quyền bán căn góc 2PN WH-10 giá 9,2tỷ (98m2) view cầu Thủ Thiêm, quận 1, Bitexco. LH 0938 022 ***

Dự án Sunwah Pearl, Đường Nguyễn Hữu Cảnh, Phường 22, Bình Thạnh, Hồ Chí Minh

Cần bán căn hộ Hausneo 1PN, 53m2, giá 1.8 tỷ

Cần bán căn hộ Hausneo 1PN, 53m2, giá 1.8 tỷ

Dự án Căn hộ Hausneo, Đường Liên Phường, Phường Phú Hữu, Quận 9, Hồ Chí Minh

Bán CH Sunrise Riverside 70m2 2PN 2WC full nội thất 2.9 tỷ LH 0935 926 ***

Bán CH Sunrise Riverside 70m2 2PN 2WC full nội thất 2.9 tỷ LH 0935 926 ***

Dự án Sunrise Riverside, Đường Nguyễn Hữu Thọ, Xã Phước Kiển, Nhà Bè, Hồ Chí Minh